- マンションリノベーション
- キッチン
- お風呂
- トイレ
- 内装
- その他
大阪市
施工事例
works
二人の息子さんが独立されたのをきっかけに、これからのご夫婦2人がより過ごしやすい間取りにマンション全面リフォーム。
リビングを広げたり、新生活がより豊かで楽しくなるような住まいになりました。
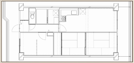
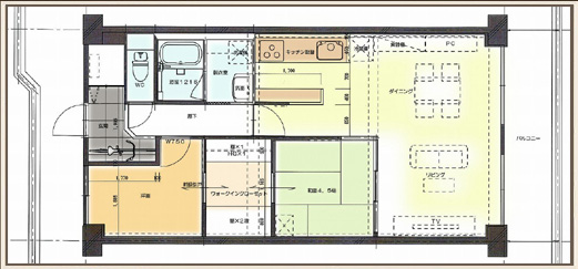
二人暮らしになり、お部屋の大きさは足りていたので、自転車を置く為に玄関部分を広げ、見せる収納でギャラリー風にしました。
LDKも可動式の扉をつけることにより、シーンによって違った雰囲気を楽しめる設計にしました。
暗くて狭かった玄関は、アクティブなご主人が大事にされているロードレーサー(自転車)が置ける様に玄関部分を広げ、まるでお店のショーウィンドウのようになりました。
玄関を広げた分洋室は少し小さくなりましたが、和室まで通り抜けられるウォークインクロゼットを新設してお部屋には家具を置かなくていいのでスッキリです。
キッチン : TOTO クラッソ
コチラがマンションリモデル部門No.1になった写真です。
キッチンの後方に少し高めのカウンターを設け、家電をここに収納。
廊下・和室からの目隠しになるので片付けも作業も楽になりました。
リビングに面した和室の引戸は大きく開口をとれるように1枚を引き込み戸に、もう片方を3枚引戸にしました。
角に柱が無いので開ければLDKの和室コーナーに、閉めれば個室にと早変わり。
右上 : 和室を開けたところ
右下 : 和室を閉めたところ
和室を1室減らし広くなったリビングにの証明を全てLEDダウンライトにすることですっきりとモダンな印象に。LEDライトは調光がきくので、シーンによって使い分けができ、長寿命です。

以前から紹介させて頂いていたこの事例ですが、2011年9月「リモデル作品コンテスト2011」において総合5位、マンションリモデル部門においてはなんと1位!に選ばれたのを記念して改めてご紹介致します!
エントリー作品総数64点 総投票数1533票、大手リフォームチェーンに混じっての大健闘です
なんといってっも、一般のお客様に選んで頂けた事が嬉しいです。

左上 : マンションリモデル部門No.1の表彰状
右上 : 選定中の様子
下 : 1位に選んで頂いた事例シート
contact
リフォームに関するお悩み事や、ちょっと相談したいことがある、
不動産についての質問など、どんなご相談でも大丈夫です!
お気軽にご相談ください!
area
東大阪市、大阪市、八尾市、守口市、門真市、四条畷市、大東市、池田市、箕面市、茨木市、高槻市、豊中市、吹田市、摂津市、枚方市、交野市、寝屋川市、柏原市、堺市、松原市、羽曳野市、藤井寺市
兵庫県、京都府、奈良県(一部地域のぞく)