- マンションリノベーション
- キッチン
- お風呂
- トイレ
- 内装
- その他
大阪市
施工事例
works
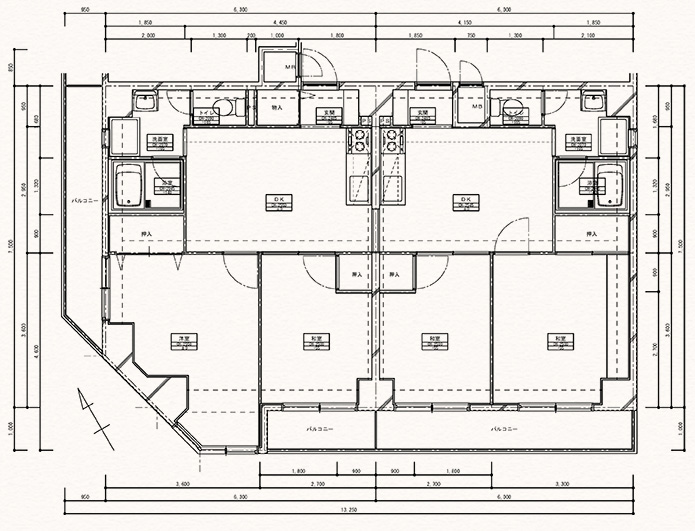
同じような間取りが反転して並んでいる一般的なファミリー向け賃貸マンション。
マンションリフォームは排水経路が大きなカギを握るのですがこちらのマンション、設計図から変更になったのかかなり違っていたので排水経路を調査をしながら工事を進めていきました。
図面右側広いLDKの和室はロールスクリーンで区切って客間になります。
図面左側は居住空間で家族の収納をひとまとめにする。
大きなクロゼットを廊下に配置しました。
2室のうち1室をまるまるLDKスペースに。
クロスとブラインド類には特にこだわってS様自身が選定されました。
掛け軸をたくさんお持ちだったので、それが映える床の間を何度も打合せして完成させました。
新しくキッチンを設置する場所の排水経路にとても悩まされました。
結果的にはパイプシャフト手前でスラブに埋まっていくというイレギュラーでした。
最初は梁部分のみ壁をフカシてキッチンを据える予定でしたが「どんな棚にしましょう?」と打合せを重ねていくうちに電子レンジを置けるサイズに広げて反対側をすっきりとさせました。
システムキッチン (LIXIL /シエラ 2550 ディープグレー)
Before写真のキッチンの左側が木製の壁になっていて隣のお部屋と繋げることができるようになっています。
デザインだけでなく、取手や色にもこだわりました。
内装ドア (パナソニック /ベリティス クラフトレーベル ブラックオーク柄)
2室を繋げたことで不要になったLDK側の玄関を家族のインフォメーションコーナーに。
家族の予定やお子様の工作を飾ったり、味のある小部屋になりました。
とんがり部分から覗くペンダントがおしゃれです。
ガス給湯器がお風呂の浴槽と一緒になっているパックイン型でしたのでバルコニーに追い焚きのできる給湯器を設置しました。
シンプルに機能的に。無駄なものを省いて、お掃除もしやすくなりました。
ユニットバス(TOTO /サザナHT Sタイプ 1317サイズ)
浴室換気暖房乾燥機は梁と天井の取り合いがギリギリで、職人さんが超薄型ではなく【薄型】なら何とか納まりますと言ってくれたので、無事浴室換気暖房乾燥機を設置出来ました。
シンプルな洗面化粧台にアイアンのブラックがアクセントになっています。
こちらはS様が選ばれたものです。
洗面化粧台(Panasonic / シーライン 900 ウォールナット柄)
トイレもシンプルで機能的に。
便器は普通のマンションタイプですがウォッシュレットは高機能で家族の清潔をキープします。
トイレ (TOTO /ピュアレストMR アプリコットF1A)
ボールや自転車なども置ける広い玄関に。
右側は家族の荷物をひとまとめに収納できる大型クローゼット。
玄関ドアを開けたらお客様を迎える広い空間。
家の中が丸見えなんてこともありません。
内装ドア (パナソニック /ベリティス クラフトレーベル ブラックオーク柄)
クロゼットドア (パナソニック /ベリティス ホワイトアッシュ柄)
ダウンライトでご提案していましたが、ステキな照明器具を探してこられました。
こっちの方がステキですね(^^)

賃貸マンションオーナーの娘さんからご依頼でした。
新築の時から二間続きに出来るように設計されていた建物でオーナーであるお父様の先見の明に只々感服いたしました。
大まかなプランはS様がプランされており、私どもがアドバイスするような形で進めさせていただきました。
contact
リフォームに関するお悩み事や、ちょっと相談したいことがある、
不動産についての質問など、どんなご相談でも大丈夫です!
お気軽にご相談ください!
area
東大阪市、大阪市、八尾市、守口市、門真市、四条畷市、大東市、池田市、箕面市、茨木市、高槻市、豊中市、吹田市、摂津市、枚方市、交野市、寝屋川市、柏原市、堺市、松原市、羽曳野市、藤井寺市
兵庫県、京都府、奈良県(一部地域のぞく)