施工事例

works

  • 戸建てリノベーション
  • キッチン
  • お風呂
  • 洗面
  • トイレ
  • 内装
  • その他

店舗2Fの事務所スペースを住まいに

施工内容
全面リフォーム
家族構成
40代
施工期間
35日
所在地
大阪市平野区
施工費
570万円
築年数
約40年
目次

プラン

Before

After

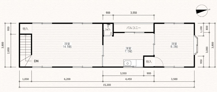
居室2部屋と大きな浴室が欲しいとのご要望でした。
なるべく窓からの光を取り入れるため、窓側にオープンスペースをとりました。
現在お使いの家具の寸法を測っていただいて、それらがはいるように配置しております。

LDK

Before

After

太陽の光がまぶしいLDK。
現地調査の時に、屋根の梁が見えている感じが素敵だったので そのまま使うプランにしました。
フローリングの下には電気式の床暖をいれました。

電気式床暖房 (アルシステム /プリマヴェーラ・ネオ)
フローリング (NODA /Jクラレス かばライト)

ポイント

露出させた梁は元の木目を生かすため、傷を隠す程度の塗装にとどめました。

キッチン

Before

After

シンプル機能のシステムキッチンです。
勾配天井と梁とキッチン上部の納まりが難しかったのですが大工さんとあーでもない、こーでもないと相談してきれいに収まりました!

システムキッチン (LIXIL /シエラ 2250L ナチュラルチェリー)

浴室

Before

After

お仕事の後、疲れた体を癒すお風呂にはゆったりと入りたい!
1坪(1616サイズ)のユニットバスには自動で浴槽を洗浄してくれる【おそうじ浴槽】機能をつけました。

ユニットバス  (TOTO /サザナ Sタイプ 1616サイズ)

ポイント

お風呂には窓が欲しいというT様のご要望に応えるためちょっと変則ではありますが、既設窓を内窓で浴室と洗面脱衣室に区切りました。

洗面脱衣室&トイレ

Before

After

LDKを大きくとるために、トイレ・洗面脱衣室を一つの部屋にまとめました。
入浴中に家族がトイレに行きたくなった時に困りますが・・・
「同時になることはめったにないでしょう」ということで、ご了解頂いてます。

洗面化粧台(パナソニック /Mライン 750)
トイレ  (LIXIL /アメージュZ)

玄関・廊下

Before

After

勾配天井を活かしたスタイリッシュな玄関・廊下に。
室内玄関のため木製ドアで柔らかい印象になりました。

玄関ドア(パナソニック /ベリティス メイプル柄)

担当者より

食品工場になっている建物の2F部分です。
以前は従業員用休憩室として使っていた2Fを住まいにリノベーションさせていただきました。
天井と壁には断熱材を入れて、あとはご予算の範囲で耐震補強を行いました。

リノベーション・増改築

renovation

住み慣れた実家やご自宅を、
今の自分たちの暮らしに合う間取りに変更したり、
断熱や耐震も含めたリノベーション・増改築をご提案。

お家のリフォームや
増改築・全面リフォームを
お考えの方

contact

リフォームに関するお悩み事や、ちょっと相談したいことがある、
不動産についての質問など、どんなご相談でも大丈夫です!
お気軽にご相談ください!

対応エリア

area

東大阪市、大阪市、八尾市、守口市、門真市、四条畷市、大東市、池田市、箕面市、茨木市、高槻市、豊中市、吹田市、摂津市、枚方市、交野市、寝屋川市、柏原市、堺市、松原市、羽曳野市、藤井寺市
兵庫県、京都府、奈良県(一部地域のぞく)