- 戸建てリノベーション
- キッチン
- 内装
- その他
東大阪市
施工事例
works
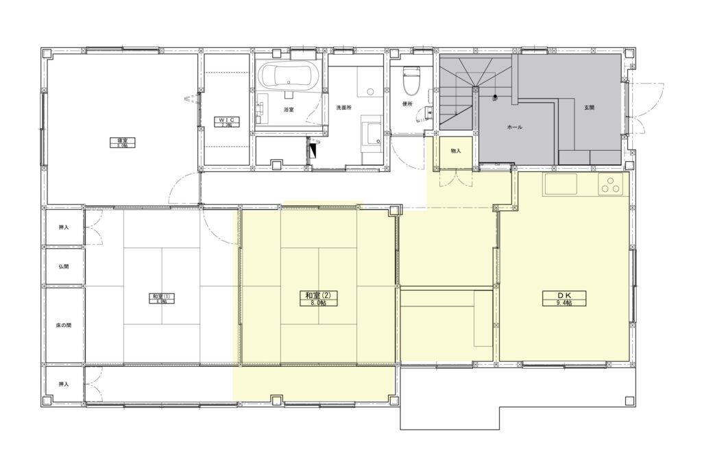
ゆったりとした玄関ホールを挟んで、左に居間、右にDKという間取り。
冷暖房効率や使い勝手から、DKがLDKとして使われており、居間はあまり活用されていませんでした。
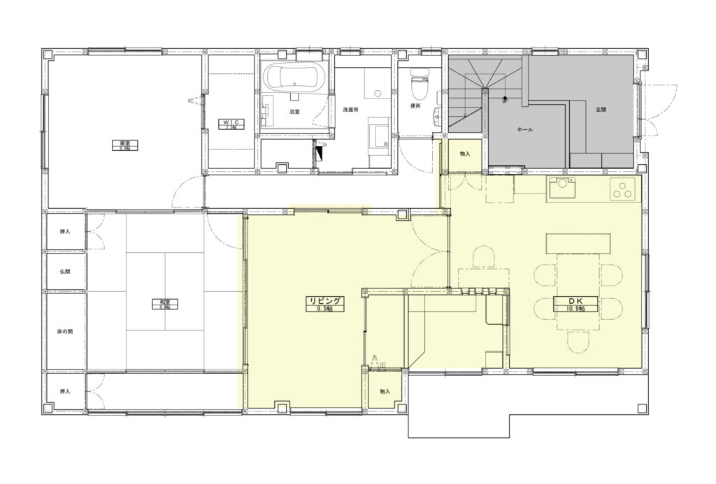
玄関ホールを部屋に取り込みDKを広げました。
リビングとDKの間仕切りには両開扉を採用し、開放すればひとつながりの空間になります。
以前は一度廊下に出て行き来していましたが、一体感のあるL+DKになりました。
最初は廊下をリビングに取り込んだ間取りでのご提案でしたが、トイレと洗面室にはワンクッション空間が欲しいとのご意見をいただき、この間取りになりました。
住まわれる方の好みや使い方、習慣などをヒアリングしながら最適な間取りを、お客様と一緒に考えていきます
年齢を重ねるごとに使わなくなるキッチンの吊戸棚を、この機会に無くしてスッキリとさせました。
システムキッチン(クリナップ ラクエラ)
対面カウンター(クリナップ ステディア)
左に見える白い扉は玄関につながる勝手口で、買い物帰りの重い荷物を直接キッチンに運べます。
あまり目立たせないようにホワイトにしました。
上吊り引戸(パナソニック ベリティス ホワイトアッシュ)
もともと玄関ホールだった部分。
左がリビングに、右が廊下に続きます。
玄関に面したスリット窓の前は、パソコンデスクを置きました。
左:両開き扉 (パナソニック ベリティス チェリー)
右:上吊り引戸(パナソニック ベリティス チェリー)
旧玄関ホールも素敵だったのですが、少しコンパクトにして、ダイニングキッチン直通の勝手口を設けました。これが意外と便利で重宝しているそうです。
玄関収納(パナソニック ベリティス コンポリア ウォールナット)
土間タイル(LIXIL ベスパ 大理石タイプ)





contact
リフォームに関するお悩み事や、ちょっと相談したいことがある、
不動産についての質問など、どんなご相談でも大丈夫です!
お気軽にご相談ください!
area
東大阪市、大阪市、八尾市、守口市、門真市、四条畷市、大東市、池田市、箕面市、茨木市、高槻市、豊中市、吹田市、摂津市、枚方市、交野市、寝屋川市、柏原市、堺市、松原市、羽曳野市、藤井寺市
兵庫県、京都府、奈良県(一部地域のぞく)