- 戸建てリノベーション
- キッチン
- 内装
- その他
四條畷市
施工事例
works
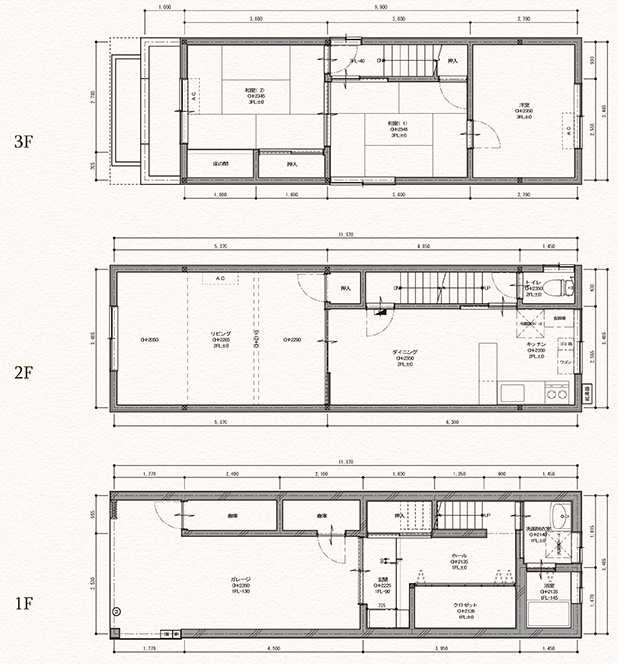
1F鉄筋コンクリート造、2-3F木造で両隣隙間は30-40cmほど。
外壁側からの作業が不可能なため、すべて内側からの作業となりました。
洗面脱衣室が狭かったので、脱衣室と洗面室を分けました。
あと縦長のお家なので、短い方向に数か所補強を入れて頑丈にしました。
洗濯物を干しに3Fまで上がるのが辛いということで、2Fにバルコニーを新設しました。
リビングの一番広い壁面には、レンガ調のアクセントクロスを貼りました。
当初は反対側の壁を予定していましたが、エアコンが移動できなかったので、アクセントクロス(柄物)の上にエアコン(白)があるのはどうかな?ということでこちら側に。
奥行きが出てとっても素敵なリビングになりました。
階段を上がってすぐに目につくのがこのキッチン。
圧迫感がないように、吊戸棚をホワイトにしました。
リビングにもダイニングにも目を配れるキッチンです。
システムキッチン (LIXIL /シエラ 2250サイズ)
隣家と密接しているため、排気と排水には苦労しました。
1Fの壁面を通すなど工夫を凝らして、無事設置出来ました。
「浴室を広くしたい」とのご要望だったのですが。
解体してみると思いのほかコンクリートが分厚く・・・
奥行きが少し広がった程度にしか広げることができませんでした。
すみませんでした。
ただお引き渡しの時にお子さんが、このお風呂をとても気に入って何度も出入りしていたのが見れて嬉しかったです。
ユニットバス(LIXIL /リノビオP 1116サイズ)
UBになったことと、浴室暖房乾燥機が付いたことで、快適さは確実にアップしました。
洗面脱衣室が狭かったので、敢えて洗面室と脱衣室を分けました。
お子さんが大きくなっても、お風呂上りにゆっくりとドライヤーが使えます(笑)
洗面化粧台(LIXIL / ピアラ 750+150)
クロゼットもあるので洗剤などのストック品もサッと収納できます。
シンプル機能のトイレです。
コストを抑える為、この窓は既存のままです。
トイレ (LIXIL /アメージュZ)
間取りは変えていませんが、大胆なアクセントクロスを使うことでガラッと雰囲気が変わりましたね。
大きな窓から光が入るダイニングスペース。
キッチンとダイニングの位置を入れ替えたことで調理&後片付け中もリビングの様子を見渡すことができるようになりました。
室内側 引き戸 (パナソニック /ベリティス ウォールナット柄)
バルコニー側 サッシ (YKKap /フレミングJ Low-Eペアガラス プラチナステン)
和室から洋室にしました。押入+床の間を大きなクロゼットに。
ドアは既存和室に色を合わせました。
内装ドア (パナソニック /ベリティス オーク柄)
クロゼットドア (パナソニック /ベリティス ホワイトアッシュ柄)
和室側はあまり手を加えなかった為、欄間は洋室側だけ塞ぎました。
少し暗い印象があった1F廊下。
下駄箱をブラウンでアクセントにし、収納ドアは圧迫感のないホワイトにしました。
クロゼットドア (パナソニック /ベリティス ホワイトアッシュ柄)
天井廻り縁を無くすことですっきりと、開放感が出ました。
玄関に大きな梁がある為、低い玄関ドアが入っていました。
N様の背の高い玄関ドアにして欲しいというご希望によりドアをガレージ側に移動して土間を広くし、背の高い玄関ドアを設置しました。
玄関収納 (パナソニック /ベリティス ウォールナット柄)
土間が広くなったので、ベビーカーなども広げたまま置けます。
位置を少しガレージ側に移動しました。
開けるとすぐに以前のドア高さのところに梁が見えます。
玄関引き戸 ( YKKap/れん樹 B02 ハニーチェリー)
有効開口寸法は変わりませんが、玄関が堂々とした感じになりました。
キッチンがあった場所にバルコニーを新設しました。
ウラが広い駐車場だったので、見通しも風通しも最高です。
バルコニー手すり (LIXIL /ハンドラインⅢ シャイングレー)
屋根はありますが、もちろん防水工事もばっちり行っております。
サイディング部分は貼り替え、塗装部分は塗り替えました。
3F後付けバルコニーは不要とのことで撤去しました。
外壁サイディング (KMEW /リュージュ14 スローグレー)
正確にはイエシロアリだったそうです
ボロボロになっているところを全て新しい木材に取り替えました

1・2.増築部分を支える柱・梁がボロボロで危険な状態でした
3.部分的に基礎を造り、横に新しい柱を入れました
4.塗装まで行い、丈夫になった柱と梁

1.最初にシロアリが出てきた、2Fの北西角
2.ほとんどの木が食べられてボロボロになっていたので、スケルトン状態まで撤去
3.そもそもの原因である雨漏りを内側から直し、この一面はほとんど新築です
4.完成後はまるで新築ですね

1.シロアリ被害は3Fまで及んでいました。怪しいところは全て撤去です
2・3・4.下地を仕上げてクロスを貼ったら、こちらも新築のようになりました
シロアリ被害で壁に穴が開いてしまっていました。
すでにアリ駆除業者さんによる処理は終わっておりましたが、N様は「家の構造体がどの程度被害にあっているかわからず、不安です」とのことでした。
ご両親から受け継いだこの家を、快適に長く住めるようにリフォームさせていただきました。
contact
リフォームに関するお悩み事や、ちょっと相談したいことがある、
不動産についての質問など、どんなご相談でも大丈夫です!
お気軽にご相談ください!
area
東大阪市、大阪市、八尾市、守口市、門真市、四条畷市、大東市、池田市、箕面市、茨木市、高槻市、豊中市、吹田市、摂津市、枚方市、交野市、寝屋川市、柏原市、堺市、松原市、羽曳野市、藤井寺市
兵庫県、京都府、奈良県(一部地域のぞく)