施工事例

works

  • 戸建てリノベーション
  • キッチン
  • お風呂
  • 洗面
  • 内装
  • その他

思い出を受け継ぐ新婚生活

施工内容
全面リフォーム
家族構成
新婚ご夫婦
施工期間
21日
所在地
八尾市
施工費
450万円
築年数
約30年
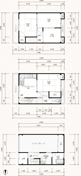
目次

プラン

Before

After

ポイント

お風呂をユニットバスに替えて、3階の和室を洋室に替えました。
キッチンが使いにくい事がストレスだったので配置を少し変えました。

キッチン

Before

After

ポイント

L型だった為にダイニングが狭く、暗い印象でした。
キッチンをI型に替えて、ガスコンロ横には小窓を設置しました。
新鮮な外気と自然な光をキッチンに取り入れる事が出来るようになりました。

システムキッチン (クリナップ/クリンレディ 2400R 天板:ステンレス 流レールシンク)

浴室

Before

After

ポイント

サイズアップできるかどうか・・・?という大きさだったので事前に少し壁を壊して調査させて頂きました。
その結果ギリギリ柱をかわし、1616サイズを設置する事が出来ました。

ユニットバス(TOTO /サザナ1616サイズ)

洗面室

Before

After

ポイント

シンプルな陶器ボウルの洗面台。
三面鏡の中には細々としたものをスッキリと収納出来ます。

洗面化粧台 (LIXIL/オフト W750 クリエペール)

洋室(1)

Before

After

ポイント

少し和のテイストを残した、和モダンの洋室
取り替えた建具は柱の色に合わせました。

収納ドア (パナソニック/ベリティス チェリー色)

ウォークインクロゼット内 収納

Before

After

ポイント

使う予定のない洋室をウォークインクローゼットに。
ずっと使いにくかった角にある収納は、可動棚を付けて使い易くなりました。

2-3F 階段

Before

After

ポイント

クリーニングとワックス掛けで美しくなりました。
クロスを貼り替えただけでとっても明るくなりました。

バルコニー 手摺

Before

After

ポイント

錆びて手摺の中には、いっぱい水が溜まっていました。
このまま放置すると手摺の軸から水がまわってしまい、雨漏りなどの原因になる事も。
穴をあけて水を抜いた後、穴をふさぎキレイに塗装しました。

担当者より

足が悪いお母さんの為に安全なお風呂にしたいと、娘さんからご依頼頂きました。
打合せが進んでいくうちにお母さんがどんどん元気になっていき、故郷で一人暮らしをすることに。
娘さんが一人で住まれるのかと思っていたら、結婚して新居にされるとのこと。
生まれ育った家で、ご近所さんに見守られながらの新婚生活も良いモノですね(*^.^*)

リノベーション・増改築

renovation

住み慣れた実家やご自宅を、
今の自分たちの暮らしに合う間取りに変更したり、
断熱や耐震も含めたリノベーション・増改築をご提案。

お家のリフォームや
増改築・全面リフォームを
お考えの方

contact

リフォームに関するお悩み事や、ちょっと相談したいことがある、
不動産についての質問など、どんなご相談でも大丈夫です!
お気軽にご相談ください!

対応エリア

area

東大阪市、大阪市、八尾市、守口市、門真市、四条畷市、大東市、池田市、箕面市、茨木市、高槻市、豊中市、吹田市、摂津市、枚方市、交野市、寝屋川市、柏原市、堺市、松原市、羽曳野市、藤井寺市
兵庫県、京都府、奈良県(一部地域のぞく)