施工事例

works

  • マンションリノベーション
  • キッチン
  • お風呂
  • 洗面
  • トイレ
  • 内装
  • 賃貸用リフォーム
  • その他

分譲貸しマンションのリニューアル

施工内容
全面リフォーム
家族構成
子育て世代向け
施工期間
14日
所在地
大阪市天王寺区
施工費
190万円
築年数
約26年
目次

プラン

Before

After

ポイント

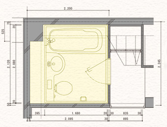
他の箇所はあまり変更が無かったので、ユニットバスまわりのみの図面です。
幸い既存ユニットバスが160cm×200cmと広かったので、ちょっと特殊な80cm×160cmサイズを採用しました。トイレと洗面も個々に取れて、扉も付けれました。

LDK-1

Before

After

ポイント

キッチンに付属していたカウンターが無くなったことで、LDとの一体感がでました。

LDK-2

Before

After

ポイント

床は既存と同じクッションフロアですが、とても良い雰囲気になりました。

LDK-3

Before

After

ポイント

既設は冷蔵庫付のコンパクトキッチンで、シンクも小さく1口コンロでした。
高級なモノではありませんが、人工大理石カウンターで奥様がときめくキッチンになりました。システムキッチン 

(LIXIL/シエラ 1800L 天板:人工大理石)

洗面室・トイレ

Before

After

ポイント

既設の3点ユニットは左から、トイレ・洗面・浴槽と並んでいました。
after左:左に洗面台、奥にトイレ
after右:左はトイレのドアを閉めたところ、右はユニットバス洗面化粧台 (LIXIL/オフト ホワイト)

トイレ   (LIXIL/アメージュ ホワイト)
ドア    (パナソニック/ベリティス ホワイトアッシュ)

浴室

Before

After

ポイント

試行錯誤の末設置したユニットバス。
シャワーブースくらいの大きさですが、しっかりお湯につかれます。

ユニットバス(TOTO /和風ユニットバス0816)

担当者より

分譲貸していたマンションのリフォームをご依頼頂きました。立地も良く、最上階でワンフロア2戸のメゾネットタイプと、条件はとても良い物件なのですが、築年数が26年とそこそこ古く、浴室・洗面・トイレが3点ユニットになっていました。
このままではなかなか借りてもらえない・・・という事で、浴室・洗面・トイレを別々にするご提案をさせて頂きました。

リノベーション・増改築

renovation

住み慣れた実家やご自宅を、
今の自分たちの暮らしに合う間取りに変更したり、
断熱や耐震も含めたリノベーション・増改築をご提案。

お家のリフォームや
増改築・全面リフォームを
お考えの方

contact

リフォームに関するお悩み事や、ちょっと相談したいことがある、
不動産についての質問など、どんなご相談でも大丈夫です!
お気軽にご相談ください!

対応エリア

area

東大阪市、大阪市、八尾市、守口市、門真市、四条畷市、大東市、池田市、箕面市、茨木市、高槻市、豊中市、吹田市、摂津市、枚方市、交野市、寝屋川市、柏原市、堺市、松原市、羽曳野市、藤井寺市
兵庫県、京都府、奈良県(一部地域のぞく)