- 戸建てリノベーション
- キッチン
- 内装
- その他
四條畷市
施工事例
works
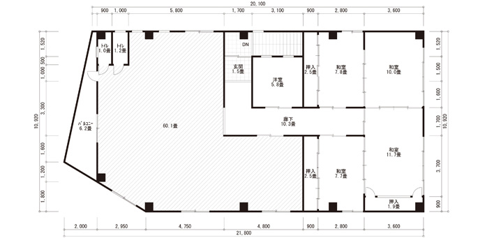
現地調査の時点で解体が終わっていたので、構造体が見ていたのでプランはし易かったです。
各々の生活時間が違っても、家族の顔を見て食事ができるようLDKは間仕切りのない一間としました。南側の三角形のバルコニーはお隣と隣接しており使いづらいので、気兼ねなく使えるよう、東側にバルコニーを新設しました。
広い空間を活かしたアイランド型キッチンです。朝食などの軽い食事はカウンターで、家族そろっての食事はテーブルで。広い空間ならではの使い方です。(撮影時にはまだダイニングテーブルがありませんでしたが・・)
サブトイレがある洗面脱衣室は、黒を基調にして白いLDKと雰囲気を逆転させました。洗面室・浴室・トイレ壁の高い位置に小窓を付け、プライバシーを守りつつ互いの気配を感じられるようにしました。
特にこだわったバスルームです。
全面を窓にしたいとのご希望だったので、可能な範囲で一番大きな窓をつけました。ミラーフィルムを貼っているので外が明るい間は、露天風呂感覚で入浴が出来ます。「とても満足しています。特に朝風呂が最高ですよ!」と感想を頂きました。
左:I様の遊び心が詰まった個性的な壁紙です。
中:「普通じゃ面白くない」といろんな難題を出して来られるI様ですが、雨を引き込んで室内に滝を作りたいとお題を頂きました。試行錯誤中の滝です。
右:トイレは特に個性的にしたいという事で、赤い柄物クロスを天井に貼りました。独特の雰囲気ですね~。

仕事が忙しく家族と過ごす時間が取れない日々。もっと家族と一緒に過ごす時間を作りたい・・・
と、事務所を兼ねた住宅の中古物件購入しリフォームをされました。
しかし最初に依頼した会社が着工直後に倒産。一部解体してしまっている為引越しも出来ず、インターネットで急きょ探した会社がヤマソーだったとの事。ありがとうございます!!
コンセプトは「個性的で遊び心があって斬新」。
普通のものでは満足しないので、面白い提案をして欲しい。
浴室は一日の疲れをいやす所。特にこだわりたい。・・・と、かなり難易度の高いリフォームでした f(^_^;)


contact
リフォームに関するお悩み事や、ちょっと相談したいことがある、
不動産についての質問など、どんなご相談でも大丈夫です!
お気軽にご相談ください!
area
東大阪市、大阪市、八尾市、守口市、門真市、四条畷市、大東市、池田市、箕面市、茨木市、高槻市、豊中市、吹田市、摂津市、枚方市、交野市、寝屋川市、柏原市、堺市、松原市、羽曳野市、藤井寺市
兵庫県、京都府、奈良県(一部地域のぞく)