施工事例

works

  • マンションリノベーション
  • キッチン
  • お風呂
  • 洗面
  • トイレ
  • 内装
  • その他

ハッピー・ニュー・ライフ

施工内容
全面リフォーム
家族構成
20代ご夫婦
施工期間
32日
所在地
東大阪市
施工費
600万円
築年数
約32年
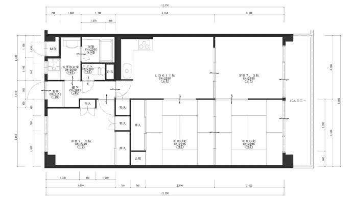
目次

プラン

Before

After

ポイント

洋室1室をなくし、大きなLDK1間にしました。
これから増えていく家族を想定して、フレキシブルに間取りを変えられるシンプルで飽きの来ないデザインになりました。

LDK

Before

After

ポイント

洋室1間をつなげて広げたLDK。
間仕切りをなくしたことで家具の配置がし易くなっただけでなく、家の中央に位置するキッチンにまで明るい光が届くようになりました。

洋室(2)

Before

After

ポイント

右上:右の扉を開放するとLDKの一部になるように、天井まで高さのある扉にしました。
右左下:全開してLDK側から見たところ。
右下:扉を全て閉めると洋室に。圧迫感を出さない為に扉は全てホワイトにしました。

キッチン

Before

After

ポイント

L型のキッチンが入っていましたが、ダイニングスペースとリビングスペースの取り合いを検討した結果、
I型キッチン(トクラス)にして対面風のカウンターを置く事に。
冷蔵庫は使い勝手を考えて、 キッチンに向けて配置し、 背面を隠すための壁を作りました。

和室

Before

After

ポイント

使い易さを考えて押入れのふすまを全てクローゼットドア(折戸)にしました。
縁無し畳を採用し、和室がLDKから見えても違和感のない調和が取れた空間になっています。

廊下

Before

After

ポイント

レトロなイメージの白い扉は全てトレンド感あふれるチェリー色に。
天井にはダウンライトを設置し、まるで新築マンションの様です(^-^)

洋室(1)

Before

After

ポイント

2つあったクローゼットは1つに集約し、内部造作を一新して住む人に合った使い勝手に。
洋室(1)は北側に位置していて結露が酷かった為、クロスは防カビ+拭取り易いのものを採用し接着剤も防カビ効果のあるものにしました。

洗面・浴室

Before

After

ポイント

洗面台とユニットバスもトクラスを採用。暖かい雰囲気になりました。
サイズも1116から1216にアップしました!

玄関

Before

After

ポイント

洋室(1)を一部廊下に取り込み大容量の下駄箱を設置しました。
開放感を出す事と、おしゃれに小物を飾れるようにと、キャビネットと吊戸が分離したセパレートタイプにしました。 左上写真に写り込んでいる人影はstaff- TAさんです(笑)

担当者より

幸せ溢れる新婚カップルさんからのご依頼でした。
ご両親と同じマンションの一室を中古でご購入し、お二人好みの新居にリニューアル。
この時点ではまだ結婚式をされていなかったので、このリフォームがお二人の「初めての共同作業」になりました!

リノベーション・増改築

renovation

住み慣れた実家やご自宅を、
今の自分たちの暮らしに合う間取りに変更したり、
断熱や耐震も含めたリノベーション・増改築をご提案。

お家のリフォームや
増改築・全面リフォームを
お考えの方

contact

リフォームに関するお悩み事や、ちょっと相談したいことがある、
不動産についての質問など、どんなご相談でも大丈夫です!
お気軽にご相談ください!

対応エリア

area

東大阪市、大阪市、八尾市、守口市、門真市、四条畷市、大東市、池田市、箕面市、茨木市、高槻市、豊中市、吹田市、摂津市、枚方市、交野市、寝屋川市、柏原市、堺市、松原市、羽曳野市、藤井寺市
兵庫県、京都府、奈良県(一部地域のぞく)