施工事例

works

  • 戸建てリノベーション
  • キッチン
  • お風呂
  • 洗面
  • トイレ
  • 内装
  • その他

限られた空間での2世帯同居

施工内容
全面リフォーム
家族構成
親夫婦・娘夫婦・お孫さん2人
施工期間
50日
所在地
東大阪市
施工費
1058万円
築年数
約29年
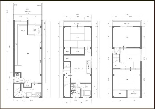
目次

プラン

Before

After

ポイント

敷地内に車が停めれる様に1階部分をセットバックしました。
洗面台、トイレ以外は共用にしてひとつにまとめ生活空間を大きく取れるようにしました。

1F洋室(親世帯)

Before

After

ポイント

飲食店をしていた時からずっと使っている、壁一面を使った大きな収納家具。
思い出の詰まったこの家具は、TVを置けるように加工・調整して再利用しました。
玄関からつながる廊下部分は昼間お部屋として使い、就寝時は間仕切りカーテンを閉め廊下として使います。
子世帯が夜遅くに玄関を出入りしても迷惑を掛けずにすみますね。

1F玄関

Before

After

ポイント

光が入りにくく暗かった玄関ですが、玄関扉の横にガラスブロックを使って光をたくさん取り込みました。

2F LDK(1)

Before

After

ポイント

キッチン前にあった風も光も入らない窓は、思い切って隠してしまいました。
部屋を区切る間仕切壁をほとんど撤去したので、奥まで光が届く明るいLDKになりました!

2F LDK(2)

Before

After

ポイント

2世帯6人が集い、ワイワイと団欒できる開放的なLDKです。

2F浴室

Before

After

ポイント

お風呂は1317サイズを強くご希望されたので、壁を薄くし、少し洗面・脱衣室を小さくして設置しました。

2F洗面・脱衣室

Before

After

ポイント

お風呂を広げた分こちらは狭くなってしまいました。
なるべく広く使えるように洗面台は奥行きがコンパクトなものにしました。
出入り口の間口が狭いので洗濯機などの搬出入の際は、扉を全て外して行える様に引き違戸にしています。

2Fトイレ

Before

After

ポイント

こちらはまだ新しかった1Fのトイレを移設、再利用しました。

1F車椅子対応トイレ

After

ポイント

親世帯のトイレは車椅子のまま入れる引き戸仕様にしました

3F子供部屋

Before

After

ポイント

成長に合わせて家具などで仕切って使える様、ひとつの大きな部屋にしました。
2人分の大きなクローゼットと、季節物が収納できる様屋根裏収納も新設しました。

3F主寝室(子世帯)

Before

After

ポイント

階段へ光を届け、子供たちの気配も感じられるガラススリット入り引き戸。

階段

Before

After

ポイント

暗かった階段は3Fの扉から漏れる光と、1F吹抜けに新設したガラスブロックから入る光でとっても明るくなりました。

2Fバルコニー

Before

After

ポイント

既存の手摺を撤去して、後付バルコニーで拡張しました。
LDKで家事をしながら子供さんがビニールプールで遊ぶのを見守る事が出来ます。

アプローチ・ガレージ

Before

After

ポイント

ずっとお気に入りだったという外観イメージをあまり変えずにガレージを新設し開放的な外観になりました。

担当者より

1Fを店舗として使用していた3F一戸建てを、娘さんファミリーと同居する為にリフォームされました。
親夫婦・娘夫婦・お孫さん2人の6人で住む、限られた空間での2世帯住宅にする為に随所に工夫を凝らしました。

リノベーション・増改築

renovation

住み慣れた実家やご自宅を、
今の自分たちの暮らしに合う間取りに変更したり、
断熱や耐震も含めたリノベーション・増改築をご提案。

お家のリフォームや
増改築・全面リフォームを
お考えの方

contact

リフォームに関するお悩み事や、ちょっと相談したいことがある、
不動産についての質問など、どんなご相談でも大丈夫です!
お気軽にご相談ください!

対応エリア

area

東大阪市、大阪市、八尾市、守口市、門真市、四条畷市、大東市、池田市、箕面市、茨木市、高槻市、豊中市、吹田市、摂津市、枚方市、交野市、寝屋川市、柏原市、堺市、松原市、羽曳野市、藤井寺市
兵庫県、京都府、奈良県(一部地域のぞく)