- マンションリノベーション
- キッチン
- お風呂
- トイレ
- 内装
- その他
大阪市
施工事例
works
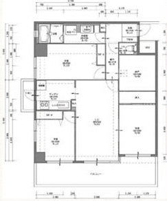
配管スペースが飛び飛びにあり、水まわりはほとんど位置の変更が不可能だった為、下駄箱の位置を変えてトイレの幅を拡張したり、フカシ壁などの無駄を極力なくして少しでも広く・使い易くなるよう工夫しています。
大部分を基本色の白色にし、使う色をダークブラウンとアルミ色の2色に抑え、アクセントに赤を使っています。
床材は石目調フローリング張りで、石の質感でありながらフローリングの柔らかさを持っています。
リビングの天井は開放感たっぷりのコーブ照明です。
洋室との間仕切りのアルミドアは下レール無しで高さが天井まであるので開放すると大きなリビングルームとして使えます。
左奥に見えるのがリビングと調和した、見せる和室です。
客間としても使える和室は赤い壁紙をアクセントにしています。
収納の上に大きな梁があるのですが、それを感じさせないように下に間接照明をつけました。
黒の縁無し畳がお部屋にとってもマッチしています。
スッキリした印象を崩さない為にエアコンは全て天井埋め込み型を採用しています。
息子さんのお部屋です。
コンクリート打ち放し調クロスの壁につけられた赤のバーチカルブラインドが
男らしいスタイリッシュな空間を演出しています。
写真右側が西なので壁には断熱材、窓には内窓を設置しています。
全室天井にも断熱材を敷いています。
キッチンスペースはあまり広くないので、扉カラーを白にして圧迫感をなくしキッチンパネルに黒を使いました。ただの真っ黒ではなく、うっすらと花模様が入っていておしゃれです。
キッチン : TOTO クラッソ
「使いにくい」と言われていたウォークインクロゼットはシステムパーツを採用して引き出しやパイプ、棚もたくさんつけました。
左奥はお布団を収納するための押入れです。
いちいち収納袋に入れなくてもいいし、ほこりの心配も要りません!
天井が低く横幅も狭かったおトイレですが、幅を広げ間接照明にしてタンクレストイレにすることで広々としました。
ここにもアクセントでダークブラウンのクロスを貼っています。
トイレ : TOTO ネオレストAH
staff-tお気に入りの玄関です。
O様が工事中に来られた時に、天井上の空間が使えたら良いな~と言われたので考えました。
天井はコーブ照明にしてその下に壁を照らすダウンライトを配置しました。
スペインのパティオみたいでとっても素敵です!

ジェルコ(日本住宅リフォーム産業協会)近畿大会
24年度「最優秀賞」受賞の事例を、改めてご紹介致します!
築25年の分譲マンションの角部屋をリフォームさせて頂きました。
梁がある為に天井が低く、幅の狭い廊下と西側のお部屋が寒いのが悩みの種でした。
廊下幅の拡張と内窓の設置を基本に、「住みやすい」スタイリッシュな空間になりました。
工事前とはこれだけ雰囲気が変わっているのに、基本的な間取りはほとんど変わっていません。
廊下幅を広げ洋室を和室に、和室を洋室に変更しただけですが、仕上げ材や建具の選び方で、こんなにスタイリッシュになりました。
表彰状とトロフィー、副賞の和菓子を頂いたあと、改めて作品紹介をさせて頂きました。


百聞は一見に如かず。
工事前も工事中も、3Dでイメージを見て頂いて確認して頂きました。
contact
リフォームに関するお悩み事や、ちょっと相談したいことがある、
不動産についての質問など、どんなご相談でも大丈夫です!
お気軽にご相談ください!
area
東大阪市、大阪市、八尾市、守口市、門真市、四条畷市、大東市、池田市、箕面市、茨木市、高槻市、豊中市、吹田市、摂津市、枚方市、交野市、寝屋川市、柏原市、堺市、松原市、羽曳野市、藤井寺市
兵庫県、京都府、奈良県(一部地域のぞく)